BORING SYSTEM 321 SWITCH

SPARE PARTS FOR

BORING SYSTEM 321 SWITCH

Semiautomatic, multispindle 3-head boring machine with n.1 horizontal fixed boring head and n. 2 turnable vertical boring heads

For horizontal and vertical drilling into wood-based panels; for the production of big-size pieces of furniture. The ideal solution for bookcase, bookshelf and wardrobe manufacturers.

- Small footprint: 2 sqm

- The quick set-up devices and the 3 boring heads, working simultaneously, considerably speed up the working process with respect to a single-head boring machine

More than 3.000 machines manufactured, over thirty years' experience .100% made-in-Italy machines abiding by the highest quality standards as a result of the "Lean" manufacturing process, also known as "Toyota System".

General Information



MODEL TECHNICAL FEATURES

N.2 parallel vertical heads with 21 spindles each, tiltable from 0° to 90°, with the possibility of in-line positioning. ; accurate positioning over digital read-out displays with pneumatic locking system. Boring-depth adjustment on numeric counters

N.1 fixed horizontal boring head with 21 spindles, with patented Spiral System for a quick boring-depth adjustment, and numeric counters for an accurate set-up of the boring height

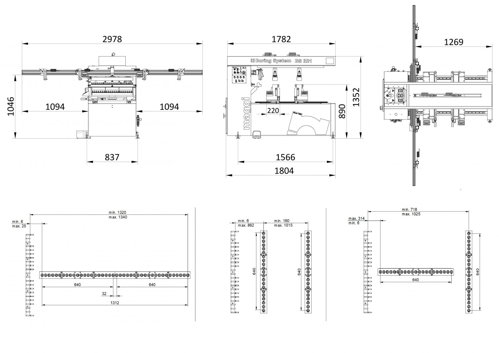
Distance between first and last spindle on each head : 640 mm and 32 mm interaxis

Electric drives to select each boring head during a working cycle 

Quick-change chuck system

Manufactured according to EC standards



STANDARD EQUIPMENT

N.3 motors HP2

N.2 hold-down clamps turning from 0° to 90° with well-dimensioned wooden bar  685 x 80 x 55 mm

N.15 quick-change chucks

N.1 -3000 mm x 80 mm fence with 4 manual ref. stops with nonius

Package: within a rigid carton box ( non stackable)

Manufactured according to EC standards





MORE INFORMATION

Immagine principale maggi

HIGH PRODUCTIVITY

It performs all the drilling operations to build up a cabinet in just two working cycles: the two vertical boring heads drill the holes for the side panels while the horizontal boring head makes the holes for the panel joints. The dimensioned frame of the BS 321 also allows the inline positioning of the two vertical heads for executing rows of holes with a total pitch up to 1,312 mm, offering even greater flexibility.

Immagine principale maggi

QUICK SET-UP

Quick and accurate positioning of the vertical boring-heads thanks to a pneumatic locking system and digital read-out displays. Boring-depth and boring-height adjustment of the horizontal head is also easy and fast thanks to the "Spyral System" and the numeric counters.

Immagine principale maggi

EFFECTIVE PANEL HOLD-DOWN AND DRILLING ACCURACY

N.2 quick-adjustable, pneumatic, safety clamps, swivelling from 0° to 90°, ensure the perfect panel hold-down, which results into always accurate drilling operations.

Immagine principale maggi

QUICK AND ACCURATE PANEL POSITIONING

Thanks to N.4 manual reference stops with magnify glass and nonius sliding along the aluminum fence (3000x80 mm).

Immagine principale maggi

COMFORT

Easy positioning of the long panels thanks to the "Cantilever" structure and to the wide and solid holding tables made of steel. The panel drive is on the front side, easily accessible for the operator.

Immagine principale maggi

FAST AND EFFECTIVE

Thanks to the quick-set-up devices and the 3 boring heads working simultaneously, it considerably speeds up the drilling process with respect to a single-head boring machine. Perfectly suited to process big-size panels.

Immagine principale maggi

SOLID STRUCTURE

Made of steel, built to last. Eco-friendly, rust-resistant powder coating. Boring heads are made of aluminium, while internal gears are made of rectified steel.

Immagine principale maggi

FAST DRILLING OF HINGE HOLES

You can apply the boring aggregates of the available typologies ( BLUM, HETTICH, SALICE) to drill the three hinge holes in one working cycle.


DATA SHEET

Boring heads 3
Distance between the heads min. - max. 32 - 1.019 mm
Spindles each head N. 21
Left and right spindles for each head N.10 sx - n.11 dx
Spindle interaxis 32 mm
Total interaxis 640 mm
Distance between rear head n°1 and rear fence (min. - max.) 6 mm - 862 mm
Distance between front head n°2 and rear fence (min.- max.) 718 mm - 1.025 mm
Max. tool diameter 40 mm
Max. boring depth 50 mm vert / 65 mm horiz.
Height of the working table 890 mm
Max. panel thickness 60 mm
Max. panel dimensions 870 x 3000 x 60 mm
N° motors 3 (HP2 / KW 1,5 - RPM 2.800)
Standard pneumatic pressure 6 BAR
Air consumption per working cycle NL 30
Dust-collection hood diam. --------------------------------
Overall dimensions (incl. full extended side roller tables) (incl. long fence mounted) -------------------------------------
Net weight 670 Kg
Package dimensions (machine) 1950x1100x1550 mm
Fence package dimensions (each carton - n.2 cartons on the whole) -------------------------------------
Total gross weight 720 Kg

Scheda tecnica prodotto

ACCESSORIES

Ergonomics
Quick-change bush / chuck

By using these quick-change tool-holders, You can mount Your drill-bits on the boring head in just "one click"


CODE: 36000061

Quick-drill of hinge holes
Drilling aggregate for hinges, type "Salice"

To drill the three hinge holes in one single working cycle

DRILL-BITS NOT INCLUDED


CODE: 00008391

Quick-drill of hinge holes
Drilling aggregate for hinges, type "Hettich"

To drill the three hinge holes in one single working cycle

DRILL-BITS NOT INCLUDED


CODE: 00008393

Recommended tools
Tool set made up of 3 drill-bits for hinges

Recommended drill-bit set for drilling aggregate for hinges, made up of n. 2 left-handed drill-bits 8mm diameter and n.1 right-handed drill-bit 35 mm diameter

Tool set made up of 3 drill-bits for hinges


CODE: 26845821

Quick-drill of holes for Cabineo furniture connector
Drilling aggregate for "Cabineo" connectors

To drill the holes for the "Cabineo" connectors in one single working cycle

Drilling aggregate for "Cabineo" connectors, including 3 drill-bits 15 mm diam.


CODE: 26845820

Quick-drill of hinge holes
Drilling aggregate for hinges type "Blum"

To drill the three hinge holes in one single working cycle

DRILL-BITS NOT INCLUDED


CODE: 00008392

Ergonomics
Increase the accuracy of the working process

It provides an additional support for the long panels, increasing their stability during the working process


CODE:

Increase the accuracy of the working process
Reference stop for long panels

It provides an additional reference point for the positioning of long panels, increasing their stability and consequently the accuracy of the working process.


CODE: 26842203


VIDEOS

BS 321 TOUCH - VIDEO


Product Guide

Immagine prodotto 632

Please refer to the attached table for the available types of hinge aggregates ...


accessories, options
Immagine prodotto 633

Please refer to the attached drawings for the requested information...

accessories, options, dimensions

 The hinge drilling aggregates attach to the spindles on the head with a simple click, just like regular drill bits.

assembling, accessories, options
Immagine prodotto 634

Please refer to the attached image...

accessories, options, dimensions
Immagine prodotto 635
Immagine prodotto 636
Immagine prodotto 940
Immagine prodotto 941

Please refer to the attached documentation...

Documents, usage tips
Immagine prodotto 637

 The quick-change chucks (code 36000061) are mechanical tool holders that allow for the rapid mounting and removal of drill bits on the head of the boring machine, without the need for additional tools, just a click!

accessories, options

Yes, these multi-head boring machines are also available in a single-phase motor format. 

motors, voltages, equipment

Yes,  Maggi semi-automatic boring machines, both single-head and multi-head, are also available in the single-phase motor format.

motors, voltages
Immagine prodotto 663

The reference pin is not just a generic alternative to the bar; in the case of processing (inline vertical drilling) panels longer than 2 meters, it becomes ESSENTIAL to complete the work!

Look at the attached drawings; as you can see, the third and final part of the operation cannot be completed with just the bar because the profile is not long enough to provide the necessary references. Furthermore, the reference pin is always to be preferred over the bar and should be recommended to the customer when precision is an essential requirement!

use and maintenance, comparisons, usage tips
Immagine prodotto 758
Immagine prodotto 1147
Immagine prodotto 1148

The hinge head units are offered by Maggi as accessories for their single-head and 3-head drills to allow the creation of the 3 holes for hinge application in a single drilling cycle. There are various types of head unit (see attached image), for each of which we recommend using specific 38.5 mm length drill bits (see attached image) - a 35 mm diameter center bit and 8 or 10 mm diameter side bits.

The hinge head unit can be installed on any spindle of the drill head, whether it rotates clockwise or counterclockwise, so the rotation direction of the bits is not a limiting factor. For ease of use, Maggi offers the 35 mm diameter center bit with a CLOCKWISE rotation and the side bits with a COUNTERCLOCKWISE rotation. The 3 bits can be purchased separately or as a kit.

accessories, options, usage tips, consultancy

For the lubrication of the heads of the multi-spindle boring machines , we recommend using IP Athesia PGX 2  type grease. We advise checking the optimal lubrication level every 500 hours of operation.

use and maintenance, usage tips
Immagine prodotto 763
Immagine prodotto 932
Immagine prodotto 1142

Attached are instructions and images to correctly perform the lubrication of the drilling head of the multi-spindle boring machines ...

use and maintenance, consultancy

At the time of order, it is possible to request a motor with a different voltage from the standard one (400V - 50 Hz - 3PH), or in single-phase version (only for products that allow it), but it is not possible to have a more powerful motor."

motors, voltages, equipment, technical details

The hinge aggregates that we offer as accessories, in order to make the 3 holes necessary for the application of classic door hinges in a single work cycle, can be applied to the drilling heads of the following Maggi drilling machines: 


- BORING SYSTEM 21 PRESTIGE

- BORING SYSTEM 21 TECHNOLOGY

- BORING SYSTEM 23

- BORING SYSTEM 29

- BORING SYSTEM 35

- BORING SYSTEM 323

- BORING SYSTEM 323 DIGIT


HINGE AGGREGATE CANNOT BE APPLIED ON THE BORING SYSTEM 46 DRILLING MACHINE

comparisons, accessories, options

The drilling aggregates for hinges and for Cabineo can be applied to all traditional Maggi drilling machines, EXCEPT THE BORING SYSTEM 46

comparisons, accessories, options

ATEX certification is a European directive that applies to equipment that can be used in potentially explosive environments.

Maggi products, particularly the motors used, are not ATEX certified.

For more information, you can contact our customer service office at service@maggi-technology.com 

motors, certifications
Immagine prodotto 631

You can identify each spare part within the spare parts area on the website at the following link: https://www.maggi-technology.com/it/ 


Identifying a spare part is easy; the website has a "spare parts identification" function that can be accessed from various points on the site: at the top of each page on the bar, from the HOME page, and through the MENU in the section dedicated to "SPARE PARTS" (as shown in the attached image), as well as in the "SUPPORT" - "after-sales support" section at the bottom of the contact area.


Once you are in the "spare parts identification" function, simply enter the machine code in the search box, and the corresponding exploded views with the codes for all the spare parts will appear. To find out the price of each spare part, you can contact our service directly via email at service@maggi-technology.com or by calling +39 0571 635 433, or you can ask the nearest MAGGI dealer; you can find them on the dealer map on the website at the following link: https://www.maggi-technology.com/it/contatti/mappa-rivenditori.

spare parts
Immagine prodotto 630

To print or download the text and image contents of the product sheet, simply click on the .pdf link located below the main image of the product of interest (as shown in the attached image); then you can decide, within your printing program, whether to proceed with printing the document directly (the print quality will depend on your settings) or to create the PDF file (the .pdf file is quite large due to the presence of many images; for sending the document via email, it is recommended to save the document using the "save PDF with reduced size" option).

Documents

Maggi guarantees the availability of spare parts for up to 10 years from the product's manufacturing date.

For spare parts older than 10 years, availability is not guaranteed; you can send a request to our after-sales service (service@maggi-technology.com ) specifying the machine code in question, the year of manufacture, and including a photo of the product and the component for which you are requesting the spare part.

spare parts

The declared voltage tolerance for connecting the machine to the electrical system is ±10%.
The declared voltage tolerance of the motor, however, is ±22%.

voltages

To allow the Maggi consultants to evaluate if a certain processing is feasible with one of their machines, I need to provide the following information and data:

  • Dimensions of the workpiece (width, length, thickness, weight)
  • Material (MDF panel, particleboard, plywood... solid wood... etc.)
  • Type of processing to be performed (please send drawing or PDF file)
  • Required productivity (number of pieces per day/week)
  • Type of finished product and possibly a photo of it


compatibility, usage tips, consultancy
new-

FREE APP
FOR REMOTE ASSISTANCE

IN REAL TIME

Make your life easier. Save time and cut costs.

Maggi has revolutionised the world of traditional machines by making a free APP available to its resellers, providing remote assistance using advanced technology that is friendly and accessible for everybody.


Instant translation 

Thanks to augmented reality technology and instant translation into 80 languages, we can guide an operator on the other side of the world finding the solution to a problem, in real-time.

REQUEST INFORMATION

NEWSLETTER

If you want to receive ours updates subscribe to our mailing list.